Однокомнатная квартира 47,80 м2 по ул. Василия Ланового 6к2 за 34500000 руб.

Однокомнатная квартира по ул. Василия Ланового, 6к2 в Москве
Цена 34 500 000 р. (721 757 р./м2)
Подать заявку на ипотеку
Адрес Василия Ланового, 6к2
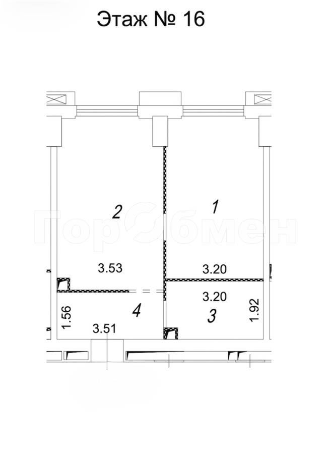
Этаж 16/50
Площадь общая 47,8 м2, жилая 16,8 м2, кухни 19,4 м2
Кол-во комнат Однокомнатная
ПРЕМИУМ ЖК "СОБЫТИЕ - 4" (ЗАО Раменки, застройщик - ДОНСТРОЙ) ХАРАКТЕРИСТИКИ: 1 комн - 47,8 кв м на 16/50 этаж комната - 16,8 кв м кухня-гостиная - 19,4 кв м БЕЗ ОТДЕЛКИ ТРАНСПОРТ: - ст м "Мичуринский проспект" - 14 минут пешком - ст м "Аминьевская" - 15 минут пешком - выезд на ТТК - 10 мин ОСОБЕННОСТИ: - 6 скай-мостов на 26-27 и 50 этажах - для перехода и отдыха - sky-парк на крыше (первый в Москве) - фитнес-рум - зоны отдыха в лобби - зоны коворкингов - детские и тинейджерские комнаты отдыха - бьюти-рум - кинотеатр под открытым небом - закрытый двор - собственный парк - 24 га - в 10 минутах - 2 школы, 10 детских садов, ВУЗЫ (МГУ) - в квартале - виды на МГУ, Москва-Сити, Воробьевы Горы В доме доступны к продаже места на подземном паркинге и кладовк на минусовых и высоких этажах Готовый дизайн-проект В ПОДАРОК Есть возможность купить в ипотеку, 1 собственник, маткапитал не использовали при покупке Чистая продажа от СОБСТВЕННИКА Альтернатива подобрана
Описание дома
Этажность дома 50
Объявление № 23996224
Дата подачи:
3 апреля 2026 г. 4:05
Дата обновления:
3 апреля 2026 г. 4:05
Просмотров 2 Хотите продать быстрее?

Продавец
Агентство недвижимости:
СЕРГЕЕНКО ЕЛЕНА ПЕТРОВНА
Показать номер телефона
Пожаловаться
Комментарии:
Добавить